
皇城明珠公寓位於被譽為「黃龍之心」的核心區域,這裡匯聚了能量、財氣與福運,是河內西區大門的新綠色焦點與城市景觀地標。
黃城珍珠公寓緊鄰首都的重要交通幹道:胡松茂路,靠近 Nhon–河內捷運站,以及貫穿全市的范雄路,方便連接三環路與黎德壽路。

皇城明珠建案位置
皇城明珠公寓的住戶可以輕鬆連接周邊生活設施,並方便快速前往市中心。
南慈廉醫療中心 – 500 公尺
南慈廉區警察局 – 850 公尺
198 醫院 – 2 公里
三環路 – 2 公里
美亭巴士站 – 2.2 公里
美亭體育場 – 2.2 公里
E 醫院 – 3.2 公里
國家會議中心 – 4.5 公里
皇城明珠公寓是高級住宅,擁有一系列頂級設施,經過合理規劃與設計,為住戶提供尊貴、整潔的生活空間。同時配備智慧管理系統,方便連接周邊交通。
珍珠中央公園
散步步道
足部按摩步道
戶外健身區
兒童遊戲區
野餐草坪
烤肉區
社區活動室
閱覽圖書室
豪華接待大廳
幼兒園
健身與運動中心
商業零售區(位於底層兩層及三棟商住樓),包括超市、餐廳、咖啡廳、SPA、美髮沙龍等
24 小時多層安保系統,採用先進管理技術
依國際標準提供大樓管理與運營服務



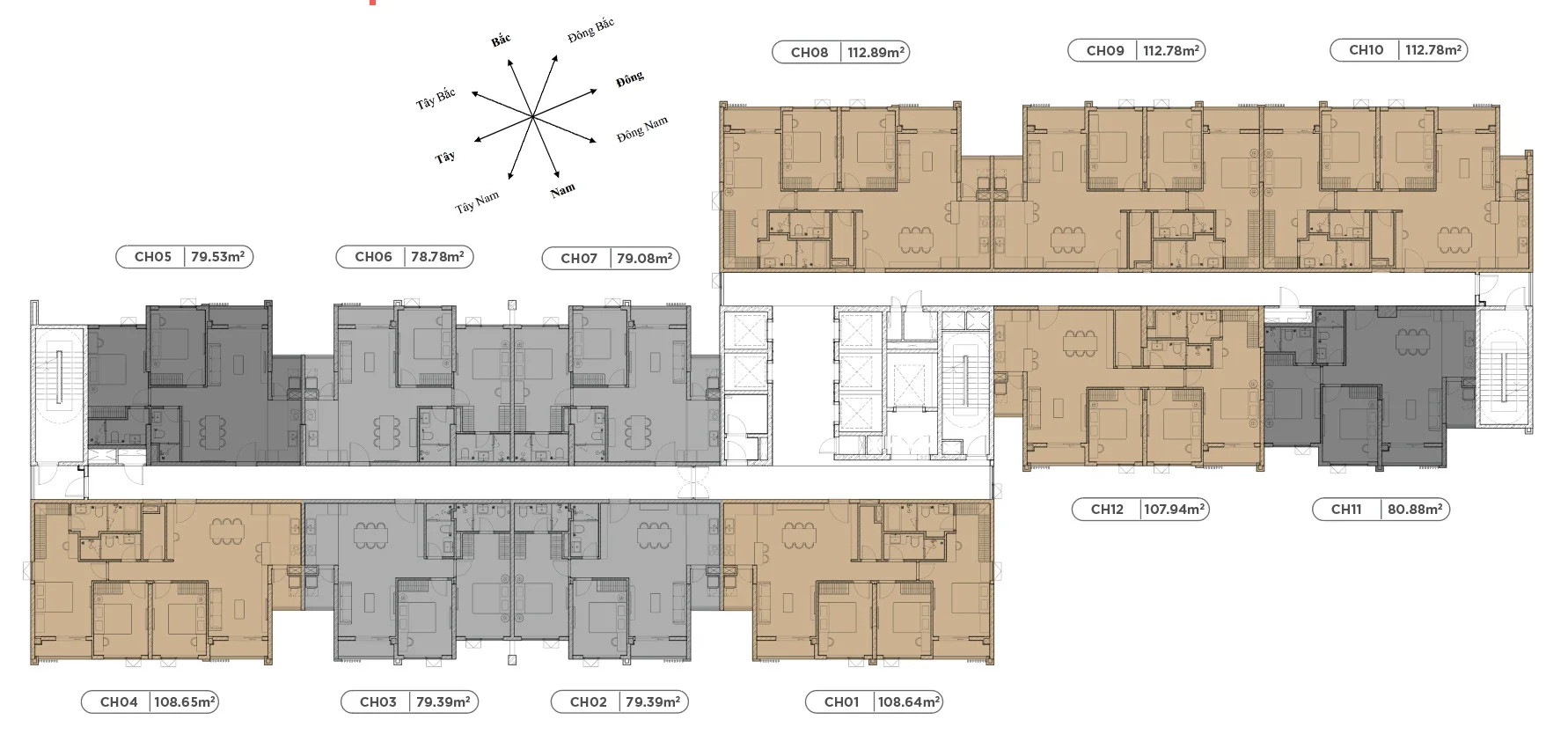
典型平面圖
12A 樓層平面圖

二房公寓設計 – 02 與 06 戶

二房公寓設計 – 03 與 07 戶

二房公寓設計 – 05 戶

二房公寓設計 – 11 戶

三房公寓設計 – 01、08、10 與 12 戶

三房公寓設計 – 04 與 09 戶
2024 年 8 月更新政策
客戶可享公寓總價(含增值稅) 2.7% 折扣
| 付款批次 | 付款比例 | 付款期限 |
|---|---|---|
| 第一批 | 1億越南盾 | 簽訂定金合約時 |
| 第二批 | 公寓價值30%(含增值稅及訂金) | 自簽訂訂金合約起15天內 |
| 第三批 | 公寓價值40%(含增值稅) | 2024年9月30日 |
| 第四批 | 公寓價值25% + 2%維修基金 | 2024年11月30日(交屋時) |
| 第五批 | 公寓價值5% | 收到產權證通知時 |
- 在台灣留學七年,取得兩個學士學位,中文能力流利(聽、說、讀、寫)
- 曾服務並與超過2,000位客戶溝通,其中90%為國際客戶,主要來自台灣、新加坡、香港、馬來西亞與中國
- 成功協助台灣及國際客戶完成將近300筆越南房地產交易
- 代表性專案(每個專案皆達20筆以上交易):
Masterise West Heights、Lacasta Tower、Hoàng Thành Pearl、The Senique、The Paris、Lumi Hanoi
- 建立專業SOP客戶接待與諮詢流程,確保各階段具備邏輯性、透明度與效率,從需求分析、產品篩選、專案參觀到最終成交,皆有系統化規劃
Line ID: zhoushi
Wechat ID: Leovn1111